¥ª¡¼¥×¥ó¥Ï¥¦¥¹
  • >
  • ¿·Ã۸ͷú½»Âð

¸½ÃÏÈÎÇä²ñ¾ðÊó

½êºßÃÏ À¤ÅÄë¶è¶ÌÀÃúÌÜ¡¡¡ÊͽÌóÆâÍ÷²ñ¡Ë
¸òÄÌ ÅìµÞÅıàÅÔ»ÔÀþ
Æó»Ò¶ÌÀî±Ø ÅÌÊâ12ʬ
³«ºÅÆü 2026ǯ4·î29Æü¡Ê¿å¡¦½Ë¡ËAM10:00¡ÁPM5:00
2026ǯ5·î2Æü¡ÊÅÚ¡ËAM10:00¡ÁPM5:00
2026ǯ5·î3Æü¡ÊÆü¡ËAM10:00¡ÁPM5:00
¡ÔͽÌóÆâÍ÷²ñ³«ºÅ¡Õ
ÆâÍ÷¤ò¤´´õ˾¤Î¤ªµÒÍͤϲ¼µ­¤è¤ê¤ª¿½¤·¹þ¤ß¤¯¤À¤µ¤¤¡£
¤ªÌ䤤¹ç¤ï¤»Àè¡§03-3424-8111
¢¨±Ä¶È»þ´Ö¡§9:30¡Á20:00

ʪ·ï³µÍ×

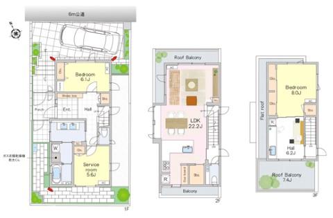
´Ö¼è 2 £Ó£Ì£Ä£Ë ²Á³Ê(Àǹþ) 24800Ëü±ß
ÉßÃÏ/ÀìÍ­ÌÌÀÑ 120.64m2 »äÆ»ÌÌÀÑ -m2
±ä¾²ÌÌÀÑ 122.77m2 ÅÚÃϸ¢Íø ½êÍ­¸¢
¼ÚÃÏ´ü´Ö - ÃÏÂå(·î³Û) 0±ß/·î
ÍÑÅÓÃÏ°è £±¼ïÄãÁØ Ãó¼Ö¾ì Í­
·úÊÃΨ 40¡ó ÍÆÀÑΨ 100¡ó
¹½Â¤ ÌÚ¤ ÃϾå/Ãϲ¼ ÃϾå3³¬ Ãϲ¼0³¬ 0³¬Éôʬ
ÃÛǯ·î 2026ǯ2·î ·úÃÛ³ÎǧÈÖ¹æ -
¸½¶· ¶õ²È ¤ªÌä¹ç¤»ÈÖ¹æ 34189
°úÅϤ· (ÁêÃÌ) 
È÷¹Í ¢¡Â¾¸òÄÌ¡§ÅìµÞÅıàÅÔ»ÔÀþ¡ÖÍѲì¡×±ØÅÌÊâ20ʬ¡¦ÅìµÞÅıàÅÔ»ÔÀþ¡ÖÆó»Ò¿·ÃϡױØÅÌÊâ20ʬ¢¡ÀÜÆ»¡§ËÌÅì¦Ìó6.0£í¸øÆ»¢¡·úʪÌÌÀѤËÈ÷ÃßÁÒ¸ËÌÌÀÑ(2.17­Ö)¤ò´Þ¤à¢¡Âè2¼ïÉ÷Ã×Ã϶袣À¸³è¤òºÌ¤ë¿ºÌ¤Ê¾¦¶È»ÜÀߤȡ¢ÌÚ¡¹¤ÎÎФò¿È¶á¤Ë´¶¤¸¤ë³¹¡ÖÆó»Ò¶ÌÀî¡× ¢£IDEE¼Ò¤Î²È¶ñ¤òÇÛ¤·¤¿¥Ç¥¶¥¤¥óÀ­°î¤ì¤ë¶õ´Ö¢£¾ÈÌÀ¡¦¥¨¥¢¥³¥ó¡¦¥·¥ã¥Ã¥¿¡¼¡¦¸¼´Ø¥É¥¢¤Ê¤É²»À¼¤ä¥¹¥Þ¡¼¥È¥Õ¥©¥ó¤ÇÁàºî¤Ç¤­¤ëIoT¥·¥¹¥Æ¥à¤òºÎÍÑ ¢£ÂÑ¿ÌÅùµé3¼èÆÀ¡¢Á´¼¼¥¨¥¢¥³¥óÀßÃֺѡ¢¥¬¥¹´¥Á絡¡¢ÂðÇÛBOX¤Ê¤É¤Î½»ÂðÀßÈ÷¤â½¼¼Â

LDK

¿·Ã۸ͷú½»Âð - ÅìµþÅÔÀ¤ÅÄë¶è¶ÌÀÃúÌÜ - ÅìµÞÅıàÅÔ»ÔÀþÆó»Ò¶ÌÀî ÅÌÊâ12ʬ ¥Ð¥¹0ʬ

´Ö¼è¿Þ

¿·Ã۸ͷú½»Âð - ÅìµþÅÔÀ¤ÅÄë¶è¶ÌÀÃúÌÜ - ÅìµÞÅıàÅÔ»ÔÀþÆó»Ò¶ÌÀî ÅÌÊâ12ʬ ¥Ð¥¹0ʬ

¥ß¥Ë¥·¥ó¥¯

¿·Ã۸ͷú½»Âð - ÅìµþÅÔÀ¤ÅÄë¶è¶ÌÀÃúÌÜ - ÅìµÞÅıàÅÔ»ÔÀþÆó»Ò¶ÌÀî ÅÌÊâ12ʬ ¥Ð¥¹0ʬ

¥ë¡¼¥Õ¥Ð¥ë¥³¥Ë¡¼

¿·Ã۸ͷú½»Âð - ÅìµþÅÔÀ¤ÅÄë¶è¶ÌÀÃúÌÜ - ÅìµÞÅıàÅÔ»ÔÀþÆó»Ò¶ÌÀî ÅÌÊâ12ʬ ¥Ð¥¹0ʬ

³°´Ñ

¿·Ã۸ͷú½»Âð - ÅìµþÅÔÀ¤ÅÄë¶è¶ÌÀÃúÌÜ - ÅìµÞÅıàÅÔ»ÔÀþÆó»Ò¶ÌÀî ÅÌÊâ12ʬ ¥Ð¥¹0ʬ
  • ¤ªÌ䤤¹ç¤ï¤»
¤´ÉÔÌÀ¤ÊÅÀ¤Ï¤ªµ¤·Ú¤Ë¤ªÌ䤤¹ç¤ï¤»²¼¤µ¤¤
[TEL] 03-3424-8111

Copyright (C)1998-2019 ³ô¼°²ñ¼Ò·ò¥Ï¥¦¥¸¥ó¥° / À¤ÅÄë¶è¤ÎÉÔÆ°»º²ñ¼Ò