世田谷不動産なら世田谷区下北沢の健ハウジング
会社情報
店舗案内
お問い合わせ
アーバニティ下北沢A区画
売地
世田谷不動産 健ハウジングHOME
>
アーバニティ
>
物件一覧
>
アーバニティ下北沢A区画(東京都世田谷区代田1丁目 売地) 参考プラン 1903
物件概要
OUTLINE
参考プラン
REFERENCE PLAN
周辺情報
LIFE INFOMATION
周辺環境
LOCATION
参考プラン
区画図
立面図
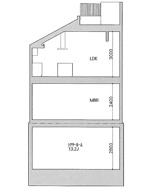
断面図
住宅用・参考プラン
注記
建物参考価格には、設計料、構造設計料、建築確認申請料、住宅瑕疵担保責任保険料、地盤補強工事、外溝工事、上下水道・ガス管宅内引込工事等が含まれておりません。
本計画は基本計画の為、確認申請審査等による行政指導によって変更が生じる可能性があります。
本計画は道路斜線、高度斜線、設計G.L等の詳細検討が必要となります。検討結果によって変更が生じる可能性があります。
本計画は構造計画が未検討です。基本計画決定には詳細な検討が必要となります。検討の結果、窓、天井高等に変更が生じる場合があります。
区画図
住宅用・立面図
住宅用・断面図
東京の不動産物件
My住まい
利回り.JP
アーバニティ
アーバニティ物件一覧
アーバニティ施工例
JWOOD工法
ONES CUBO
2×4工法
AEP工法
免震地盤工法
IK工法
アフターサービス
住宅性能保証制度
JIO我が家の保険
建築施工事例
リノベーション
動画で見る
ご購入者の声
現地見学お申込み
買いたいコラム
買いたい
東京の不動産物件
My住まい
利回り.JP
アーバニティ
建築施工事例
リノベーション
動画で見る
ご購入者の声
現地見学お申込み
買いたいコラム
売りたい
売却システム
価格査定システム
賃貸依頼
土地求む
売りたいコラム
知りたい
購入手順
売買・税金のお話
住宅ローン情報
不動産用語辞典
不動産Q&A
お引越し情報
不動産トピックス
公示地価
セキュリティ対策
学区域情報
知りたいコラム
KEN HOUSING
新着情報
今月の広告
もれなくプレゼント
ご成約キャンペーン
会社情報
店舗案内
お客様紹介
お問い合わせ
社員ブログ
サイトマップ
Copyright (C)1998-2019 株式会社健ハウジング / 世田谷区の不動産会社