menu
買いたい
東京の不動産物件
マッチングサービスとは
新規会員登録
My住まい
利回り.JP
アーバニティ
物件一覧
JWOOD工法
ONES CUBE
2×4工法
AEP工法
免震地盤工法
IK工法
アフターサービス
住宅性能保証制度
JIO我が家の保険
建築施工事例
リノベーション
動画で見る
ご購入者の声
現地見学お申し込み
買いたいコラム
売りたい
売却システム
価格査定システム
賃貸依頼
土地求む
売りたいコラム
知りたい
購入手順
資金計画
情報収集
現地見学
不動産売買契約
ローン申し込み
残代金支払い・物件引渡し
引越・入居
確定申告
売買・税金のお話
ローンを借りる時
住宅を買う時
買うときに使える特例
住宅を持っている時
住宅を売却した時
住宅を売却した時の特例
売って損をしたとき
住宅ローン情報
住宅ローン減税
住宅ローンシュミレーション
不動産用語辞典
不動産Q&A
買いたい人
売りたい人
借りたい人
お引っ越し情報
お見積フォーム
チェックリスト
公示地価
学区域情報
知りたいコラム
KEN HOUSING
新着情報
今月の広告
もれなくプレゼント
ご成約キャンペーン
会社情報
会社概要
企業理念
会社沿革
店舗案内
健ハウジング本社
健ハウジング駅前店
キッズルーム
ライブラリー
下北沢看板
お客様紹介
お問い合わせ
社員ブログ
Facebook
その他コンテンツ
無料税務相談会
無料法務相談会
パソコンサイト紹介
世田谷区タウン情報
サイトマップ
プライバシーポリシー
アーバニティ下北沢
売地
2013年3月23日初電から東北沢、下北沢、世田谷代田 3駅地下化決定!!
―代々木上原~梅ヶ丘駅間上下線を地下化、9箇所の踏切を廃止―
複々線化・連続立体交差化によって駅の利便性が向上、開かずの踏切もなくなります!!
現在、鉄道を地下化した後の土地利用について、東京都、世田谷区等の関係者と協議が進められています東北沢・下北沢・世田谷代田の各駅では、世田谷区により、駅前広場の整備について検討が進められており、このうち下北沢駅については、既に都市計画決定がされています。
また複々線化・連続立体交差化にあわせてエレベーター・エスカレーターの設置による駅施設のバリアフリー化や駐輪場の整備なども予定されており、交通アクセスや利便性が格段に向上します。
区画図
参考プラン
立面図
断面図
区画図
4分割案
3分割案
2分割案
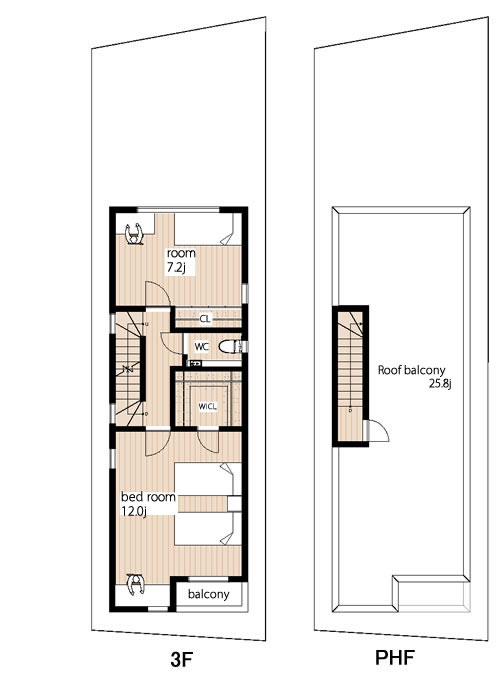
4分割(A区画)建物参考プラン
3分割(B区画)建物参考プラン
3分割(C区画)建物参考プラン
4分割(A区画)建物参考プラン立面図
3分割(B区画)建物参考プラン立面図
3分割(C区画)建物参考プラン立面図
4分割(A区画)建物参考プラン断面図
3分割(B区画)建物参考プラン断面図
3分割(C区画)建物参考プラン断面図
―代々木上原~梅ヶ丘駅間上下線を地下化、9箇所の踏切を廃止―
複々線化・連続立体交差化によって駅の利便性が向上、開かずの踏切もなくなります!!
現在、鉄道を地下化した後の土地利用について、東京都、世田谷区等の関係者と協議が進められています東北沢・下北沢・世田谷代田の各駅では、世田谷区により、駅前広場の整備について検討が進められており、このうち下北沢駅については、既に都市計画決定がされています。
また複々線化・連続立体交差化にあわせてエレベーター・エスカレーターの設置による駅施設のバリアフリー化や駐輪場の整備なども予定されており、交通アクセスや利便性が格段に向上します。